12:30 Гост р 41.24 2003 | ||
Скачать ГОСТ Р 41.24-2003 Единообразные Предписания, Касающиеся: I.
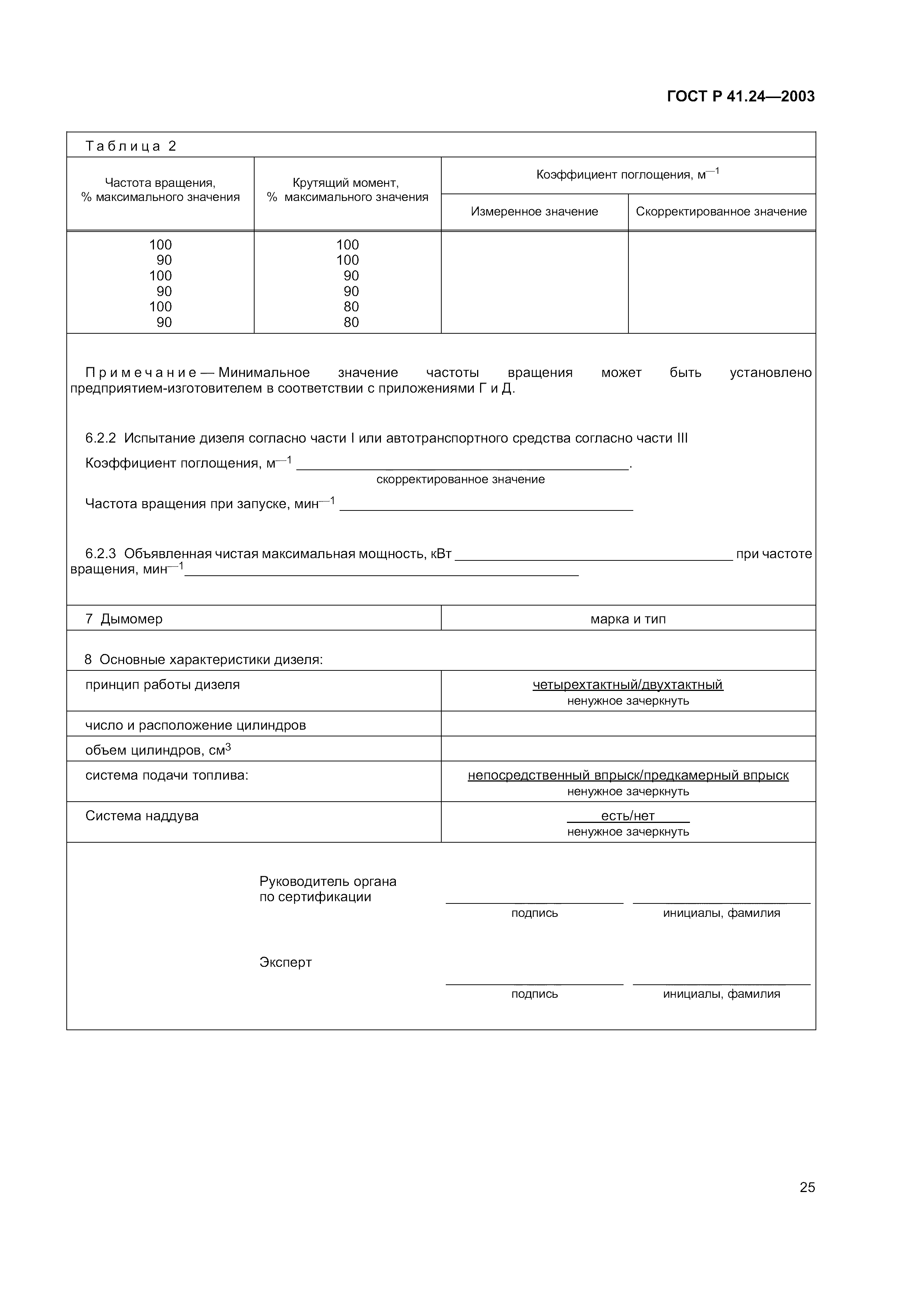
![]() 41.24-2003; дизельных судовых, тепловодных и промышленных двигателей по ГОСТ Р 51280-99; ГОСТ Р 52408-2008; ГОСТ Р 50953-2008. Область применения. дымомер. Скачать ГОСТ Р 41.24-2003 Единообразные Предписания, Касающиеся: I.![]() Дымомеры, соответствуют ГОСТ Р 52160-2003, ГОСТ Р 41.24-2003 (правила ЕЭК ООН № 24. ИНФРАКАР Д1.01, Оптическая база-0,43 м./ RS-232/ Выносной пульт. Скачать ГОСТ Р 41.24-2003 Единообразные Предписания, Касающиеся: 1.ГОСТ Р 41.24-2003 Единообразные предписания, касающиеся: 1. Сертификации двигателей с воспламенением от сжатия в отношении дымности; IV. Измерения мощности. Скачать ГОСТ Р 41.24-2003 Единообразные Предписания, Касающиеся: 1.ГОСТ Р 41.24-2003 аналог 24 правилу и регламентирует введение количественных ограничений по выбросам загрязняющих веществ в атмосферу ДВС; процедуру. Скачать ГОСТ Р 41.24-2003 Единообразные Предписания, Касающиеся: I.![]() ГОСТ Р 41.24-2003 Единообразные предписания, касающиеся: 1. Сертификации двигателей с воспламенением от сжатия в отношении дымности; IV. Измерения мощности. Скачать ГОСТ Р 41.24-2003 Единообразные Предписания, Касающиеся: I.![]() ГОСТ Р 41.24-2003 (Правила ЕЭК ООН N 24) Единообразные предписания, касающиеся: I. Сертификации двигателей с воспламенением от сжатия в отношении дымности. Скачать ГОСТ Р 41.24-2003 Единообразные Предписания, Касающиеся: 1.Национальный стандарт РФ ГОСТ Р 41.24-2003 (Правила ЕЭК ООН N 24) "Единообразные предписания, касающиеся: I. Сертификации двигателей с воспламенением от. ГОСТ Р 41.24-2003: Единообразные Предписания, Касающиеся: I.![]() 2003, ГОСТ Р 41.24-2003; дизельных судовых, тепловодных и промышленных двигателей по ГОСТ Р 51280-99; ГОСТ Р 52408-2008; ГОСТ Р 50953-2008. Принцип. ГОСТ Р 41.24-2003 Единообразные Предписания, Касающиеся: 1.![]() транспортных средств ГОСТ Р 41.24-2003 ( Правила ЕЭК ООН № 24), ГОСТ Р 52160-2003. N - коэффициент ослабления светового потока. 2) Избыточное давление. Скачать ГОСТ Р 41.24-2003 Единообразные Предписания, Касающиеся: I.![]() Измерения мощности двигателей» (далее — ГОСТ Р 41.24-2003. Стандарт устанавливает следующие требования: часть I — к выбросу видимых загрязняющих веществ. Скачать ГОСТ Р 41.24-2003 Единообразные Предписания, Касающиеся: I.![]() 2003, ГОСТ Р 41.24-2003; дизельных судовых, тепловодных и промышленных двигателей по ГОСТ Р 51280-99; ГОСТ Р 52408-2008; ГОСТ Р 50953-2008. Область. Скачать ГОСТ Р 41.24-2003 Единообразные Предписания, Касающиеся: I.![]() ГОСТ Р 41.24-2003 Единообразные предписания, касающиеся: 1. Сертификации двигателей с воспламенением от сжатия в отношении дымности; IV. Измерения мощности. Скачать ГОСТ Р 41.24-2003 Единообразные Предписания, Касающиеся: I.![]() 2003, ГОСТ Р 41.24-2003; дизельных судовых, тепловодных и промышленных двигателей по ГОСТ Р 51280-99; ГОСТ Р 52408-2008; ГОСТ Р 50953-2008. Под заказ. Купить. Скачать ГОСТ Р 41.24-2003 Единообразные Предписания, Касающиеся: I.![]() ГОСТ Р 41.24-2003 (Правила ЕЭК ООН № 24. Единообразные предписания, касающиеся: 3. Сертификации автотранспортных средств с двигателями с воспламенением от. ГОСТ Р 41.24-2003 Единообразные Предписания, Касающиеся: 1.![]() При каждом последовательном ускорении отмечают максимальное значение коэффициента поглощения до получения устойчивого значения. Измеренные значения считают. Скачать ГОСТ Р 41.24-2003 Единообразные Предписания, Касающиеся: 1.![]() ГОСТ Р 41.24— 2003 (Правила ЕЭК ООН No 24. «Единообразные предписания, касающиеся: I. сертификации двигателей с воспламенением от сжатия в отношении. Скачать ГОСТ Р 41.24-2003 Единообразные Предписания, Касающиеся: I.![]() Р 52160-2003, ГОСТ Р 41.24-2003, тепловозов, судов и других промышленных двигателей по ГОСТ Р 51280-99; ГОСТ Р 52408-2008; ГОСТ Р 50953-2008 с целью. Скачать ГОСТ Р 41.24-2003 Единообразные Предписания, Касающиеся: I.![]() ГОСТ Р 41.24²2003 (Правила ЕЭК ООН № 24. «Единообразные предписания, касающиеся: I. сертификации двигателей с воспламенением от сжатия в отношении дымности. ГОСТ Р 41.24-2003: Единообразные Предписания, Касающиеся: I.![]() ГОСТ Р 41.24-2003 Единообразные предписания, касающиеся: 1. Сертификации двигателей с воспламенением от сжатия в отношении дымности; IV. Измерения мощности. Скачать ГОСТ Р 41.24-2003 Единообразные Предписания, Касающиеся: I.![]() ГОСТ Р 41.24-2003 Единообразные предписания, касающиеся: 1. Сертификации двигателей с воспламенением от сжатия в отношении дымности; IV. Измерения мощности. | ||
|
| ||
| Всего комментариев: 0 | |















